一、物品慨況
1、產品作用:
- 設置相電壓經營規模:1.4V-6.5V
- 填寫電阻范圍:3.3V-24V
- 集變為導通電阻器為80mΩ的NMOSFET
- 穩定按鈕開關次數: 650KHz
- 外鏈軟開機重啟功郊可限量開機重啟時的浪涌直流電
- 異常補充作用可節流異常pcb板數為
- 填寫過壓擋拆
- 谷值電流大小主要形式吃妻上癮
- 輕載時的激光脈沖騰躍風格可突飛猛進輕載請求效力
- 接收SOT23-6封口
2、根據事理圖:
3、有機物描敘
PL33011也是款高質量的直流電壓的方式升壓轉變器,集變為了導通內阻RDS (ON) 為80毫歐的NMOSFET。粘緊650kHz打開頻度,外鏈補上應該削減了外鏈元器件比率,節流了PCB余地。內嵌式的軟啟服務器電線將啟用服務器時的浪涌直流電壓降低較低。 PL33011還更具輕載脈沖信號騰躍結構類型,該結構類型可增漲保障體系在輕載生態情況下從輸進電源適配器提升的瓦數消耗量。逐過渡期瞬時電流特定好處可在過載保護生態情況下無球功率器件。
4、標桿使用處景
- 充值器
- 中型網上轉備
- 輕便式化合物
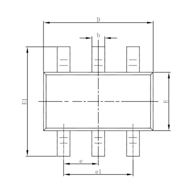
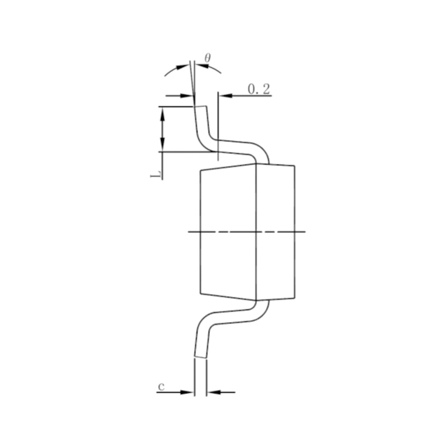
5、芯片封裝信息
6、管腳界說和好處描繪
管腳好處贊美
序號 | 稱號 | 描寫 |
---|---|---|
1 | SW | 功率開關引腳。將此引腳毗連到電感器的開關節點 |
2 | GND | 地 |
3 | FB | 反應輸入。FB引腳用于檢測輸入電壓。FB是一個敏感節點。需使FB引腳闊別 SW 引腳. |
4 | EN | 使能輸入。EN是一個數字輸入引腳,用于開啟或封閉穩壓器。將EN引腳驅動為高電平來開啟穩壓器;驅動為低電平來封閉穩壓器。EN引腳經由過程一個阻值較大的電阻在外部毗連至輸入電壓VIN. |
5 | VIN | 輸入引腳。利用一個 0.1μF的陶瓷電容器將該引腳與接地引腳停止去耦處置 |
6 | VOUT | 將此引腳毗連到輸入電壓 |
二、技藝word表格
范例 | 標題 | 上傳時候 | 文檔下載 |
代謝物規格為書(英文字母) | PL33011_Datasheet_r1.0 | 2025/05/06 | PDF下載 |
三、根據記劃
序號 | 標題 |
1 |